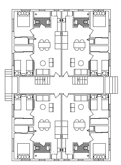
MIA 1

                                                        Ground Level                                                                                                                           Upper Level

MIA 2

                                                        Ground Level                                                                                                                           Upper Level